3 bedroom Cottage for sale in Wadebridge Book a Property Valuation
Tredrizzick, Rock.

Price £500,000

3 Bedroom Cottage For Sale in Tredrizzick, Rock.

2 3 2

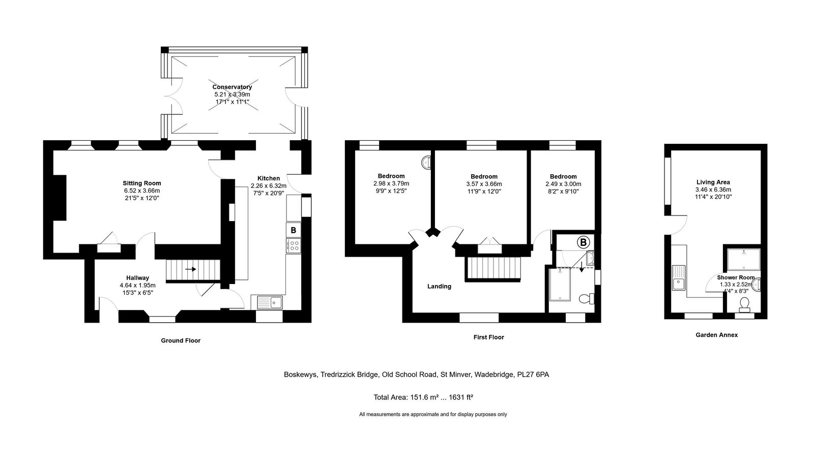
Boskewys is an attractive half slate hung, three bedroom semi detached character cottage with white rendered walls and pink shutters and front door. Situated in Tredrizzick just outside Rock on the north Cornish Coast the property is currently a successful holiday let the property is Freehold, was previously Council Tax band D now on business rates, EPC band F

There is street parking to the front of the property and a detached garage for additional parking, which also has a shower room fitted for after the beach. The front door leads into an open hallway where an attractive staircase leads up to the first floor. All the main rooms are situated to the rear of the property which is South facing. There are white painted beamed ceilings through out the property which is nice and bright for a cottage. There is a large sitting room with open fire with windows out to the rear garden and rear conservatory/sun room. The sun room is a bright spacious room that easily houses a dining room table which seats 10 people and room for settee. The kitchen runs from the front of the cottage to the rear and has a side door out to the garage. There is an electric cooker with hob and spaces for dishwasher, fridges and freezer, the oil boiler is also in the kitchen.

The staircase leads up to a galleried landing which has the three, partially vaulted ceiling bedrooms, all set to the rear of the property. Currently set out as a large double bedroom, a large twin bedroom and a bunk room.

To the rear of the garden is a detached timber garden room that has a large open plan bed/sitting room, kitchenette and a shower room. The kitchenette has a washing machine and tumble dryer.

Important Information

  • This is a Freehold property.

Property Features

  • Character Cottage
  • Oil Fired Central Heating
  • Successful Holiday Let
  • Large Conservatory
  • Private Rear Garden
  • Garden Annex
  • Garage with extra Shower Room

floorplan

Port Isaac

£495,000

3 Bedroom Bungalow

More details...

Trevanger, St Minver

£450,000

2 Bedroom Cottage

More details...

Port Isaac

£425,000

2 Bedroom Bungalow

More details...

Nr Port Isaac

£550,000

4 Bedroom Detached House

More details...

Rock

£550,000

3 Bedroom Semi-Detached Bungalow

More details...

Menefreda Way, St Minver Pl27

£575,000

3 Bedroom Detached House

More details...

Ref: 1182032

Brought to you by

Update Cookies Preferences